尊敬的客戶,首先感謝您在百忙之中瀏覽鞏義市昌瑞供水材料有限公司的網站(網址//abooking.cn),如果您在瀏覽過程中有需要詳細了解的地方,我們的網站設置有便捷的在線TQ供您邊看邊文字咨詢,我們的客服24小時在線隨時等待您的詢問。如果您感覺打字不方便,那么我們有熱線電話:,手機:供您來電咨詢,我們的銷售部經理會給您進行詳細耐心的解答。昌瑞供水材料誠信服務客戶,祝您事業成功!
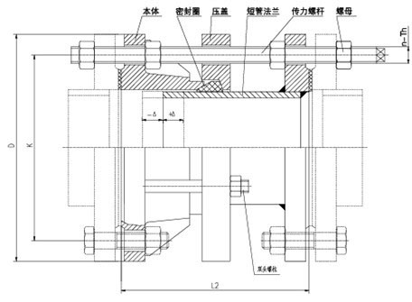
CC2F型可拆式雙法蘭松套傳力接頭結構圖
鞏義市昌瑞供水材料有限公司 CC2F型可拆式雙法蘭松套傳力接頭熱線電話:
電話: 手機
昌瑞CC2F型可拆式雙法蘭松套傳力接頭簡介:
鞏義市昌瑞供水材料有限公司專業生產制作傳力接頭系列產品,昌瑞CC2F型可拆式雙法蘭傳力接頭主要用于與泵,閥門等附件的松套連接。在使用過程中其主要是與松套補(bu)償(chang)接頭和(he)松套限位補(bu)償(chang)接頭不同(tong)的是(shi)它的補(bu)償(chang)量是(shi)指在安裝(zhuang)及(ji)拆卸過(guo)程中的調節(jie)量,一旦(dan)將所有的螺母擰(ning)緊,它是(shi)剛性連接的,可以(yi)傳遞軸心(xin)力,從而保護(hu)閥門(men)、泵等設(she)備。可拆式(shi)雙法蘭傳力接頭施工使用過程中主要是能傳遞被連接件的壓力推力和補償管路安裝誤差,不能吸收軸向位移。
昌瑞CC2F型可拆式雙法蘭松套傳力接頭優點:
昌瑞可拆式雙法蘭傳力接頭安裝簡單方便,方便閥門安裝,可承受管線的軸向拉力。
昌瑞CC2F型可拆式雙法蘭松套傳力接頭特點:
昌瑞CC2F型可拆式雙法蘭傳力接頭采用的是雙法蘭連接方式,一般其安裝在管道上后,根據所需的伸縮距離進行限位,擰緊螺母,彈性密封圈在螺母壓蓋的作用下依靠相,互斜度,緊壓在管子外圈起密封和連接作用,可拆式雙法蘭傳力接頭主要和管道閥門連接不但起到管道補償作用,更方便了閥門的維修及更換。
昌瑞CC2F型可拆式雙法蘭松套傳力接頭使用范圍:
昌瑞CC2F型可拆式雙法蘭松套傳力接頭廣泛的用于化工、建筑、給水、排水、石油、輕重工業、冷凍、衛生、水暖、消防、電力等基礎工程。
昌瑞CC2F型可拆式雙法蘭松套傳力接頭價格:
如您需要我公司生產的可拆式雙法蘭松套傳力接頭,想要咨詢其價格,就請來電咨詢我們:,也可以聯系我們的企業QQ:2512682859,企業微信:2512682859,我們有專門的網上客服為您詳細解答!歡迎您的來電咨詢洽談!
昌瑞CC2F型可拆式雙法蘭松套傳力接頭主要技術參數:
公稱通(tong)徑DN |
管子外徑 Dw |
外形尺寸 |
法 蘭 連 接 尺 寸 |
||||||||
L |
△L |
0.6MPa |
1.0MPa |
||||||||
D |
D1 |
n-Th |
b |
D |
D1 |
n-Th |
b |
||||
65 |
76 |
200 | 40 | 160 | 130 | 4-M12 | 16 | 185 | 145 | 4-M16 | 20 |
80 |
89 | 190 | 150 | 4-M16 | 18 | 200 | 160 | 8-M16 | 22 | ||
100 |
114 |
210 |
170 |
220 |
180 |
24 |
|||||
125 |
140 |
240 |
200 |
8-M16 |
20 |
250 |
210 |
26 |
|||
150 |
168 |
265 |
225 |
285 |
240 |
8-M20 |
|||||
200 |
219 |
320 |
280 |
22 |
340 |
295 |
28 |
||||
250 |
273 |
375 |
335 |
12-M16 |
24 |
395 |
350 |
12-M20 |
|||
300 |
325 |
220 |
50 |
440 |
395 |
12-M20 |
24 |
445 |
400 |
12-M20 |
28 |
350 |
377 | 490 | 445 | 26 | 505 | 460 | 16-M20 | 30 | |||
400 |
426 |
540 |
495 |
16-M20 |
28 |
565 |
515 |
16-M24 |
32 |
||
450 |
480 |
595 |
550 |
615 |
565 |
20-M24 |
32 |
||||
500 |
530 |
645 |
600 |
20-M20 |
30 |
670 |
620 |
34 |
|||
600 |
630 |
240 |
755 |
705 |
20-M24 |
780 |
725 |
20-M27 |
36 |
||
700 |
720 |
860 |
810 |
24-M24 |
32 |
895 |
840 |
24-M27 |
40 |
||
800 |
820 |
350 |
60 |
975 |
920 |
24-M27 |
34 |
1015 |
950 |
24-M30 |
44 |
900 |
920 |
1075 |
1020 |
24-M27 |
36 |
1115 |
1050 |
28-M30 |
46 |
||
1000 |
1020 |
1175 |
1120 |
28-M27 |
1230 |
1160 |
28-M33 |
50 |
|||
1200 |
1220 |
370 |
1405 |
1340 |
32-M30 |
40 |
1455 |
1380 |
32-M36 |
56 |
|
1400 |
1420 |
1630 |
1560 |
36-M33 |
44 |
1675 |
1590 |
36-M39 |
62 |
||
1600 |
1620 |
380 |
1830 |
1760 |
40-M33 |
48 |
1915 |
1820 |
40-M4 |
68 |
|
1800 |
1820 |
2045 |
1970 |
44-M36 |
50 |
2115 |
2020 |
44-M45 |
70 |
||
2000 |
2020 |
400 |
2265 |
2180 |
48-M39 |
54 |
2325 |
2230 |
48-M45 |
74 |
|
2200 |
2220 |
2475 |
2390 |
52-M39 |
60 |
2550 |
2440 |
52-M52 |
80 |
||
2400 |
2420 |
2685 |
2600 |
56-M39 |
62 |
2760 |
2650 |
56-M52 |
82 |
||
2600 |
2620 |
450 |
80 |
2905 |
2810 |
60-M45 |
64 |
2960 |
2850 |
60-M52 |
88 |
2800 |
2820 |
3115 |
3020 |
64-M45 |
68 |
3480 |
3070 |
64-M52 |
94 |
||
3000 |
3020 |
3315 |
3220 |
68-M45 |
70 |
3405 |
3290 |
68-M56 |
100 |
||
3200 |
3220 |
3525 |
3430 |
72-M45 |
76 |
|
如果您需要CC2F型可拆式雙法蘭松套傳力接頭,或者在可拆式雙法蘭松套傳力接頭的使用選購方面有什么問題,請撥打可拆式雙法蘭松套傳力接頭咨詢電話(hua):【】手機:【】,我們將為您咨詢提供可拆式雙法蘭松套傳力接頭應用的方案及詳細的圖紙、報價!昌瑞供水材料專注于為您提供優質的產品及服務,網址: //abooking.cn