尊敬的客戶,首先感謝您在百忙之中瀏覽鞏義市昌瑞供水材料有限公司的網站(網址//abooking.cn),如果您在瀏覽過程中有需要詳細了解的地方,我們的網站設置有便捷的在線TQ供您邊看邊文字咨詢,我們的客服24小時在線隨時等待您的詢問。如果您感覺打字不方便,那么我們有熱線電話(hua):,手機:供您來電咨詢,我們的銷售部經理會給您進行詳細耐心的解答。昌瑞供水材料誠信服務客戶,祝您事業成功!
鞏(gong)義(yi)市(shi)昌瑞供水(shui)材料有限公(gong)司 CF型可單法蘭松套傳力接(jie)頭熱線電話(hua):
電話: 手機:
昌(chang)瑞CF型單法(fa)蘭傳力接頭說明:
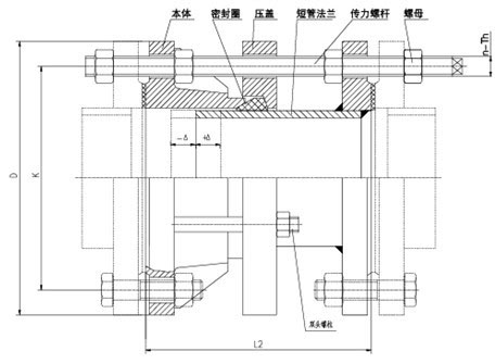
鞏義市昌瑞供水材料有限公司專業生產制作傳力接頭系列產品。昌瑞單法蘭松套傳力接頭型號VSSJAFG或CF型,單法蘭松套傳力接頭是由法蘭式松套伸縮接頭和短管法蘭,傳力螺桿等構件組成。
永鑫VSSJAFG型單法蘭傳力接頭作用:
昌瑞單法蘭松套傳力接頭在使用過程中主要是能傳遞補連接件的壓力推力(盲板力)和補償管路安裝誤差,不能吸收軸向位移,單法蘭傳力接頭主要用于與泵、閥門等附件的松套連接。
昌瑞(rui)CF型單(dan)法(fa)蘭傳力接頭優點:
單法蘭松套傳力接頭安裝簡單方便,方便閥門安裝。
昌瑞CF型單法蘭傳力接頭特點:
單法蘭松套傳力接頭比較適用于一端與法蘭連接,一端管道焊接的連接方式。
昌瑞CF型單法蘭傳力接頭材質:
單法蘭松套傳力接頭密封材料:NBR(丁腈橡膠)。
單法蘭松套傳力接頭金屬材質:主要有Q235碳鋼、不銹鋼、鑄鋼、球墨鑄鐵等。不同的用途選用不同的材質和型號。
昌瑞(rui)CF型單法蘭傳力接頭使用范(fan)圍:
昌瑞單法蘭松套傳力接頭適用于輸送海水,淡水,冷熱水,飲用水,生活污水,空氣,煤氣,溫度不高于250度的蒸汽和顆粒粉狀等介質。
昌瑞CF型單法蘭傳力接頭價格:
如您需要我公司生產的單法蘭松套傳力接頭,想要咨詢其價格,就請來電咨詢我們:,也可以聯系我們的企業QQ:2512682859,企業微信:2512682859,我們有專門的網上客服為您詳細解答!歡迎您的來電咨詢洽談!
昌(chang)瑞CF型單法蘭松套傳力接頭主要技術參數(shu):
序號
|
名(ming)稱(cheng)
|
數(shu)量
|
材料
|
1
|
本體
|
1
|
QT400-15、Q235A、ZG230-450、20
|
2
|
密封圈
|
1
|
NBR
|
3
|
壓蓋(gai)
|
1
|
QT400-15、Q235A、ZG230-450、20
|
4
|
短管法蘭
|
1
|
Q235A、20、16Mn
|
5
|
螺柱
|
n
|
Q235A、35、1Cr18Ni9Ti
|
6
|
螺母
|
5n
|
Q235A、20、1Cr18Ni9Ti
|
公稱(cheng)通徑DN |
管子外徑 |
外形(xing)尺寸(cun) |
法 蘭 連(lian) 接 尺 寸 |
|||||||||
L |
△L |
0.6MPa |
1.0MPa |
|||||||||
Dw
|
|
D |
D1 |
n-Th |
b |
D |
D1 |
n-Th |
b |
|||
65
|
76 |
76 |
400 |
40 |
160
|
130
|
4-M12
|
16
|
185 |
145 |
4-M16
|
20
|
80
|
89
|
89
|
190
|
150
|
4-M16
|
18
|
200 |
160 |
8-M16
|
22
|
||
100
|
114
|
114
|
210
|
170
|
220 |
180 |
24
|
|||||
125
|
140
|
140
|
240
|
200
|
8-M16
|
20
|
250 |
210 |
26
|
|||
150
|
168
|
168
|
265
|
225
|
285 |
240 |
8-M20
|
|||||
200
|
219
|
219
|
320
|
280
|
22
|
340 |
295 |
28
|
||||
250
|
273
|
273
|
375
|
335
|
12-M16
|
24
|
395 |
350 |
12-M20
|
|||
300
|
325
|
325
|
420 |
50 |
440
|
395
|
12-M20
|
24
|
445 |
400 |
12-M20
|
28
|
350
|
377
|
377
|
490
|
445
|
26
|
505 |
460 |
16-M20
|
30
|
|||
400
|
426
|
426
|
540
|
495
|
16-M20
|
28
|
565 |
515 |
16-M24
|
32
|
||
450
|
480
|
480
|
595
|
550
|
615 |
565 |
20-M24
|
32
|
||||
500
|
530
|
530
|
645
|
600
|
20-M20
|
30
|
670 |
620 |
34
|
|||
600
|
630
|
630
|
440 |
755
|
705
|
20-M24
|
780 |
725 |
20-M27
|
36
|
||
700
|
720
|
720
|
860
|
810
|
24-M24
|
32
|
895 |
840 |
24-M27
|
40
|
||
800
|
820
|
826
|
600 |
60 |
975
|
920
|
24-M27
|
34
|
1015 |
950 |
24-M30
|
44
|
900
|
920
|
926
|
1075
|
1020
|
24-M27
|
36
|
1115 |
1050 |
28-M30
|
46
|
||
1000
|
1020
|
1026
|
1175
|
1120
|
28-M27
|
1230 |
1160 |
28-M33
|
50
|
|||
1200
|
1220
|
1226
|
620 |
1405
|
1340
|
32-M30
|
40
|
1455 |
1380 |
32-M36
|
56
|
|
1400
|
1420
|
1428
|
1630
|
1560
|
36-M33
|
44
|
1675 |
1590 |
36-M39
|
62
|
||
1600
|
1620
|
1628
|
630 |
1830
|
1760
|
40-M33
|
48
|
1915 |
1820 |
40-M4
|
68
|
|
1800
|
1820
|
1828
|
2045
|
1970
|
44-M36
|
50
|
2115 |
2020 |
44-M45
|
70
|
||
2000
|
2020
|
2030
|
650 |
2265
|
2180
|
48-M39
|
54
|
2325 |
2230 |
48-M45
|
74
|
|
2200
|
2220
|
2230
|
2475
|
2390
|
52-M39
|
60
|
2550 |
2440 |
52-M52
|
80
|
||
2400
|
2420
|
2430
|
2685
|
2600
|
56-M39
|
62
|
2760 |
2650 |
56-M52
|
82
|
||
2600
|
2620
|
2630
|
750 |
80 |
2905
|
2810
|
60-M45
|
64
|
2960 |
2850 |
60-M52
|
88
|
2800
|
2820
|
2830
|
3115
|
3020
|
64-M45
|
68
|
3480 |
3070 |
64-M52
|
94
|
||
3000
|
3020
|
3030
|
3315
|
3220
|
68-M45
|
70
|
3405 |
3290 |
68-M56
|
|
如果您需要CC2F型可拆式雙法蘭松套傳力接頭,或者在可拆式雙法蘭松套傳力接頭的使用選購方面有什么問題,請撥打可拆式雙法蘭松套傳力接頭咨詢電話:【】手機:【】,我們將為您咨詢提供可拆式雙法蘭松套傳力接頭應用的方案及詳細的圖紙、報價!昌瑞供水材料專注于為您提供優質的產品及服務,網址: //abooking.cn