尊敬的客戶,首先感謝您在百忙之中瀏覽鞏義市昌瑞供水材料有限公司的網站(網址//abooking.cn),如果您在瀏覽過程中有需要詳細了解的地方,我們的網站設置有便捷的在線TQ供您邊看邊文字咨詢,我們的客服24小時在線隨時等待您的詢問。如果您感覺打字不方便,那么我們有熱線電話:,手機:供您來電咨詢,我們的銷售部經理會給您進行詳細耐心的解答。昌瑞供水材料誠信服務客戶,祝您事業成功!
鞏義市昌瑞供水材料有限公司 VSSJAF型雙法蘭松套傳力接頭熱線電話:
電話: 手機(ji):
昌瑞VSSJAF型雙法蘭松(song)套傳力接頭說(shuo)明:
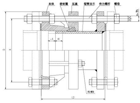
鞏義市昌瑞供水材料有限公司專業生產制作雙法蘭松套傳力接頭,昌瑞雙法蘭松套傳力接頭VSSJAF或C2F型,其是由本體、密封圈、壓蓋、短管法蘭、傳力螺桿、螺母組合而成。
昌瑞VSSJAF型雙法蘭松套傳力接頭作用:
雙法蘭松套傳力接頭能傳遞被連接件的壓力推力和補償管路安裝誤差,雙法蘭松套傳力接頭不能吸收軸向位移,雙法蘭松套傳力接頭主要用于與泵,閥門等附件的松套連接。
昌瑞VSSJAF型雙法蘭松套傳力接頭優點:
雙法蘭松套傳力接頭安裝簡單方便,方便閥門安裝,可承受管線的軸向拉力。
昌瑞VSSJAF型雙法蘭松套傳力接頭特點:
雙法蘭連接方式.安裝在管道上后,雙法蘭松套傳力接頭根據所需的伸縮距離進行限位,擰緊螺母,彈性密封圈在螺母壓蓋的作用下依靠相,互斜度,緊壓在管子外圈起密封和連接作用,雙法蘭松套傳力接頭主要和管道閥門連接不但起到管道補償作用,也方便了閥門的維修和更換。
昌瑞VSSJAF型雙法蘭松套傳力接頭安裝簡要說明:
VSSJAF型雙法蘭松套傳力接頭適用于兩端與法蘭連接的管道中,安裝時調整產品兩端與法蘭的安裝長度,對角依次均勻擰緊壓螺栓,使其成為一個整體,并有一定的位移量,方便安裝維修時,根據現場尺寸進行調整在工作時,可以把軸向推力傳遞至整個管道。
昌瑞VSSJAF型雙法蘭(lan)松套傳(chuan)力(li)接頭價(jia)格:
如您需要我公司生產的雙法蘭松套傳力接頭,想要咨詢其價格,就請來電咨詢我們:,也可以聯系我們的企業QQ:2512682859,企業微信:2512682859,我們有專門的網上客服為您詳細解答!歡迎您的來電咨詢洽談!
昌瑞VSSJAF型雙法蘭松套傳力接頭主要技術參數:
公稱(cheng)通徑
|
管子外徑
|
外形尺寸
|
伸縮量
|
法蘭連接尺(chi)寸(cun)
|
||||||
Dw
|
L
|
L1
|
0.6MPa
|
1.0MPa
|
||||||
D
|
D1
|
n-d。
|
D
|
D1
|
n-d。
|
|||||
65
|
76
|
340
|
105
|
50
|
160
|
130
|
4-¢14
|
185
|
145
|
4-¢18
|
80
|
89
|
190
|
150
|
4-¢18
|
200
|
160
|
8-¢18
|
|||
100
|
108
|
210
|
170
|
220
|
180
|
|||||
114
|
||||||||||
125
|
133
|
240
|
200
|
8-¢18
|
250
|
210
|
||||
140
|
||||||||||
150
|
159
|
265
|
225
|
285
|
240
|
8-¢22
|
||||
168
|
||||||||||
200
|
219
|
320
|
280
|
340
|
295
|
|||||
250
|
273
|
370
|
335
|
12-¢18
|
395
|
350
|
12-¢22
|
|||
300
|
325
|
350
|
130
|
65
|
440
|
395
|
12-¢22
|
445
|
400
|
|
350
|
377
|
490
|
445
|
505
|
460
|
16-¢22
|
||||
400
|
426
|
540
|
495
|
16-¢22
|
565
|
515
|
16-¢26
|
|||
450
|
480
|
595
|
550
|
615
|
565
|
20-¢26
|
||||
500
|
530
|
645
|
600
|
20-¢22
|
670
|
620
|
||||
600
|
630
|
755
|
705
|
20-¢26
|
780
|
725
|
20-¢30
|
|||
700
|
720
|
860
|
810
|
24-¢26
|
895
|
840
|
24-¢30
|
|||
800
|
820
|
590
|
220
|
130
|
975
|
920
|
24-¢30
|
1015
|
950
|
24-¢33
|
900
|
920
|
1075
|
1020
|
1115
|
1015
|
28-¢33
|
||||
1000
|
1020
|
1175
|
1120
|
28-¢30
|
1230
|
1160
|
28-¢36
|
|||
1200
|
1220
|
1405
|
1340
|
32-¢33
|
1455
|
1380
|
32-¢40
|
|||
1400
|
1420
|
1630
|
1560
|
36-¢36
|
1675
|
1590
|
36-¢42
|
|||
1500
|
1520
|
1730
|
1660
|
-
|
-
|
-
|
||||
1600
|
1620
|
1830
|
1760
|
40-¢36
|
1915
|
1820
|
40-¢48
|
|||
1800
|
1820
|
2045
|
1970
|
44-¢40
|
2115
|
2020
|
44-¢48
|
|||
2000
|
2020
|
2265
|
2180
|
48-¢42
|
2325
|
2230
|
48-¢48
|
|||
2200
|
2220
|
2475
|
2390
|
52-¢42
|
2550
|
2440
|
52-¢56
|
|||
2400
|
2420
|
2685
|
2600
|
56-¢42
|
2760
|
2650
|
56-¢56
|
如果您需要CC2F型可拆式雙法蘭松套傳力接頭,或者在可拆式雙法蘭松套傳力接頭的使用選購方面有什么問題,請撥打可拆式雙法蘭松套傳力接頭咨詢電話:【】手機:【】,我們將為您咨詢提供可拆式雙法蘭松套傳力接頭應用的方案及詳細的圖紙、報價!昌瑞供水材料專注于為您提供優質的產品及服務,網址: //abooking.cn