尊敬的客戶,首先感謝您在百忙之中瀏覽鞏義市昌瑞供水材料有限公司的網站(網址//abooking.cn),如果您在瀏覽過程中有需要詳細了解的地方,我們的網站設置有便捷的在線TQ供您邊看邊文字咨詢,我們的客服24小時在線隨時等待您的詢問。如果您感覺打字不方便,那么我們有熱線電話:,手機(ji):供您來電咨詢,我們的銷售部經理會給您進行詳細耐心的解答。昌瑞供水材料誠信服務客戶,祝您事業成功!
鞏義市昌瑞供水材料有限公司 VSSJAFG型單法蘭松套傳力接頭熱線電話:
電話: 手機(ji):
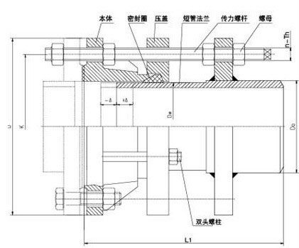
昌瑞VSSJAFG型單法(fa)蘭傳(chuan)力接頭說明(ming):
鞏義市昌瑞供水材料有限公司生產的單法蘭松套傳力接頭型號VSSJAFG或CF型,單法蘭松套傳力接頭是由法蘭式松套伸縮接頭和短管法蘭,傳力螺桿等構件組成。
昌瑞VSSJAFG型單法蘭傳力接頭作用:
昌瑞單法蘭松套傳力接頭在使用過程中主要是能傳遞補連接件的壓力推力(盲板力)和補償管路安裝誤差,不能吸收軸向位移,單法蘭傳力接頭主要用于與泵、閥門等附件的松套連接。
昌瑞VSSJAFG型單法蘭傳力接頭優點:
單法蘭松套傳力接頭安裝簡單方便,方便閥門安裝。
昌瑞VSSJAFG型單法蘭傳力接頭特點:
單法蘭松套傳力接頭適用于一端與法蘭連接,一端與管道焊接。安裝時調節產品兩端與管道或法蘭的安裝長度,安裝和焊接完畢后,對角依次均勻擰緊壓蓋螺栓,使其成為一個整體,并有一定的位移量,方便安裝維修,可根據現場尺寸進行調整。在工作時可以把軸向推力傳遞至整個管道。
昌瑞VSSJAFG型單法蘭傳力接頭材質:
單法蘭松套傳力接頭密封材料:NBR(丁腈橡膠)。
單法蘭松套傳力接頭金屬材質:主要有Q235碳鋼、不銹鋼、鑄鋼、球墨鑄鐵等。不同的用途選用不同的材質和型號。
昌瑞VSSJAFG型單法蘭傳力接頭價格:
如您需要我公司生產的單法蘭松套傳力接頭,想要咨詢其價格,就請來電咨詢我們:,也可以聯系我們的企業QQ:2512682859,企業微信:2512682859,我們有專門的網上客服為您詳細解答!歡迎您的來電咨詢洽談!
昌瑞VSSJAFG型單法蘭松套傳力接頭主要技術參數:
序號
|
名稱
|
數量
|
材(cai)料
|
1
|
本體
|
1
|
QT400-15、Q235A、ZG230-450、20
|
2
|
密封(feng)圈
|
1
|
NBR
|
3
|
壓(ya)蓋(gai)
|
1
|
QT400-15、Q235A、ZG230-450、20
|
4
|
短管法蘭
|
1
|
Q235A、20、16Mn
|
5
|
螺柱(zhu)
|
n
|
Q235A、35、1Cr18Ni9Ti
|
6
|
螺母(mu)
|
5n
|
Q235A、20、1Cr18Ni9Ti
|
公稱通(tong)徑(jing)DN |
管子外徑 |
外形尺(chi)寸 |
法 蘭 連 接(jie) 尺(chi) 寸 |
|||||||||
L |
△L |
0.6MPa |
1.0MPa |
|||||||||
Dw
|
|
D |
D1 |
n-Th |
b |
D |
D1 |
n-Th |
b |
|||
65
|
76 |
76 |
400 |
40 |
160
|
130
|
4-M12
|
16
|
185 |
145 |
4-M16
|
20
|
80
|
89
|
89
|
190
|
150
|
4-M16
|
18
|
200 |
160 |
8-M16
|
22
|
||
100
|
114
|
114
|
210
|
170
|
220 |
180 |
24
|
|||||
125
|
140
|
140
|
240
|
200
|
8-M16
|
20
|
250 |
210 |
26
|
|||
150
|
168
|
168
|
265
|
225
|
285 |
240 |
8-M20
|
|||||
200
|
219
|
219
|
320
|
280
|
22
|
340 |
295 |
28
|
||||
250
|
273
|
273
|
375
|
335
|
12-M16
|
24
|
395 |
350 |
12-M20
|
|||
300
|
325
|
325
|
420 |
50 |
440
|
395
|
12-M20
|
24
|
445 |
400 |
12-M20
|
28
|
350
|
377
|
377
|
490
|
445
|
26
|
505 |
460 |
16-M20
|
30
|
|||
400
|
426
|
426
|
540
|
495
|
16-M20
|
28
|
565 |
515 |
16-M24
|
32
|
||
450
|
480
|
480
|
595
|
550
|
615 |
565 |
20-M24
|
32
|
||||
500
|
530
|
530
|
645
|
600
|
20-M20
|
30
|
670 |
620 |
34
|
|||
600
|
630
|
630
|
440 |
755
|
705
|
20-M24
|
780 |
725 |
20-M27
|
36
|
||
700
|
720
|
720
|
860
|
810
|
24-M24
|
32
|
895 |
840 |
24-M27
|
40
|
||
800
|
820
|
826
|
600 |
60 |
975
|
920
|
24-M27
|
34
|
1015 |
950 |
24-M30
|
44
|
900
|
920
|
926
|
1075
|
1020
|
24-M27
|
36
|
1115 |
1050 |
28-M30
|
46
|
||
1000
|
1020
|
1026
|
1175
|
1120
|
28-M27
|
1230 |
1160 |
28-M33
|
50
|
|||
1200
|
1220
|
1226
|
620 |
1405
|
1340
|
32-M30
|
40
|
1455 |
1380 |
32-M36
|
56
|
|
1400
|
1420
|
1428
|
1630
|
1560
|
36-M33
|
44
|
1675 |
1590 |
36-M39
|
62
|
||
1600
|
1620
|
1628
|
630 |
1830
|
1760
|
40-M33
|
48
|
1915 |
1820 |
40-M4
|
68
|
|
1800
|
1820
|
1828
|
2045
|
1970
|
44-M36
|
50
|
2115 |
2020 |
44-M45
|
70
|
||
2000
|
2020
|
2030
|
650 |
2265
|
2180
|
48-M39
|
54
|
2325 |
2230 |
48-M45
|
74
|
|
2200
|
2220
|
2230
|
2475
|
2390
|
52-M39
|
60
|
2550 |
2440 |
52-M52
|
80
|
||
2400
|
2420
|
2430
|
2685
|
2600
|
56-M39
|
62
|
2760 |
2650 |
56-M52
|
82
|
||
2600
|
2620
|
2630
|
750 |
80 |
2905
|
2810
|
60-M45
|
64
|
2960 |
2850 |
60-M52
|
88
|
2800
|
2820
|
2830
|
3115
|
3020
|
64-M45
|
68
|
3480 |
3070 |
64-M52
|
94
|
||
3000
|
3020
|
3030
|
3315
|
3220
|
68-M45
|
70
|
3405 |
3290 |
68-M56
|
|
如果您需要CC2F型可拆式雙法蘭松套傳力接頭,或者在可拆式雙法蘭松套傳力接頭的使用選購方面有什么問題,請撥打可拆式雙法蘭松套傳力接頭咨詢電(dian)話:【】手機:【】,我們將為您咨詢提供可拆式雙法蘭松套傳力接頭應用的方案及詳細的圖紙、報價!昌瑞供水材料專注于為您提供優質的產品及服務,網址: //abooking.cn